Remplissez ce formulaire pour être rappelé immédiatement par un expert !
Des Questions sur votre Projet ?
Vous pouvez également consulter nos plans et modèles de locaux professionnels ou utiliser notre outil de devis en ligne afin de préciser votre projet et le type de maisons et de configuration que vous souhaitez.
Remplissez ce formulaire pour être rappelé immédiatement par un expert !
Des Questions sur votre Projet ?
Vous pouvez également consulter nos plans et modèles de locaux professionnels ou utiliser notre outil de devis en ligne afin de préciser votre projet et le type de maisons et de configuration que vous souhaitez.
Vous souhaitez faire construire votre local professionnel et ne savez pas par où commencer ? InterPro est là pour vous aider et vous propose d'obtenir un devis gratuit en quelques clics !
Il vous suffit de remplir le formulaire ci-dessous. Promis, aucun spam !
Des Questions sur votre projet ?
Vous avez un projet de construction de locaux professionnels et souhaitez en savoir plus sur nos services ?
Que vous envisagiez la construction de cabinets médicaux, de bureaux, de logements professionnels, ou de bâtiments administratifs, notre équipe de conseillers est à votre disposition pour vous fournir un devis.
Dans l’agglomération de La Rochelle, Interpro accompagne actuellement la réalisation d’un funérarium nouvelle génération, pensé pour offrir un accueil digne, moderne et fonctionnel aux familles. Ce projet clé en main, conçu et construit par nos équipes, illustre parfaitement notre savoir-faire dans la création de locaux professionnels spécialisés, notamment dans le secteur médico-social et des services sensibles.
Un bâtiment conçu pour le confort des familles
Le funérarium a été imaginé comme un lieu apaisant, où chaque détail architectural contribue à accompagner les proches dans un moment difficile. Le bâtiment se caractérise par :
une architecture sobre, aux lignes épurées,
une toiture traditionnelle en tuiles, parfaitement intégrée au paysage rochelais,
des volumes lumineux et faciles d’accès,
des matériaux durables répondant aux exigences des ERP (Établissements Recevant du Public).
Les extérieurs ont été aménagés pour garantir une circulation fluide, avec parking dédié, espaces verts et accès PMR.
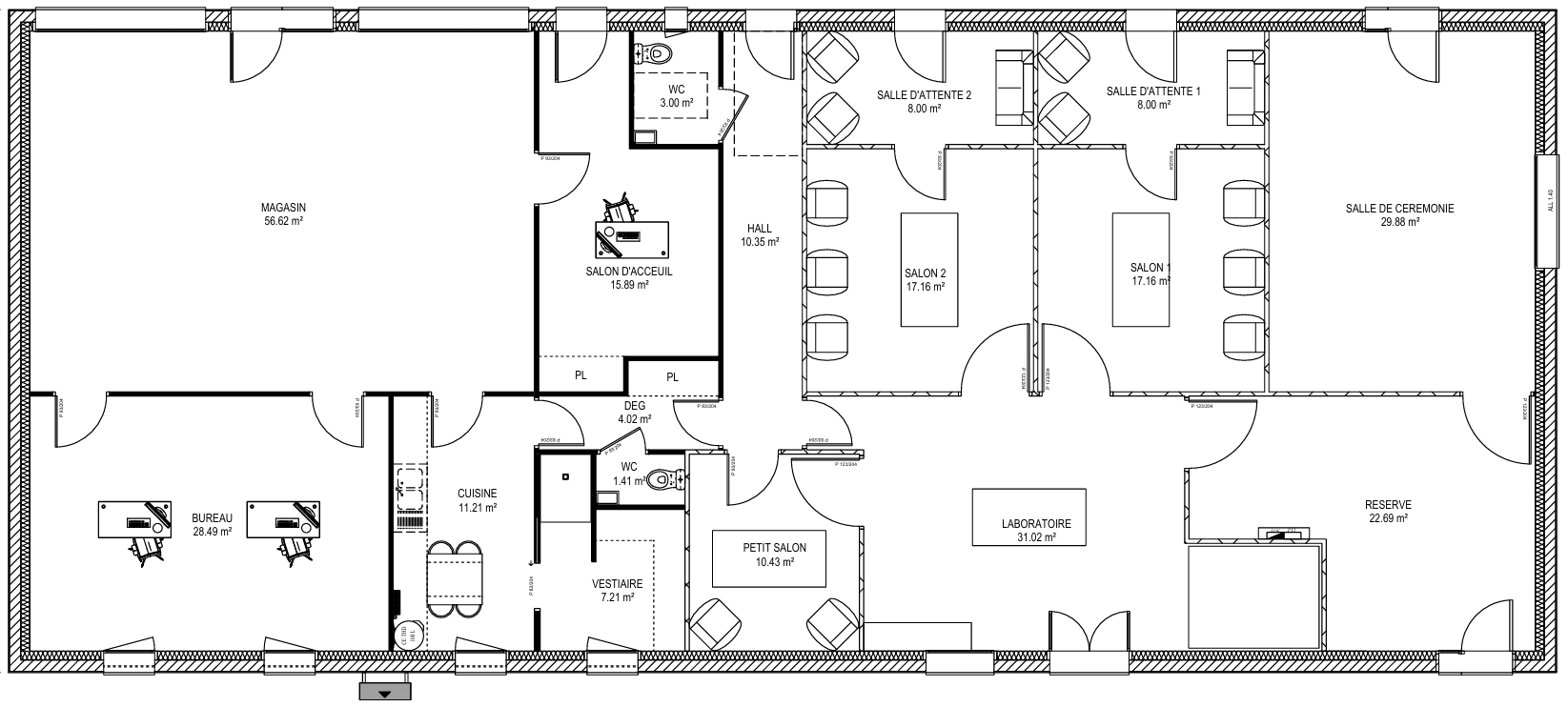
Un plan intérieur pensé pour la discrétion et la fonctionnalité
Le plan du funérarium a été travaillé en collaboration avec l’exploitant afin de proposer un cheminement cohérent et respectueux pour les familles.
Le bâtiment comprend notamment :
un espace d’accueil chaleureux,
deux salons de recueillement, chacun avec salle d’attente dédiée,
une salle de cérémonie de près de 30 m², laissant place aux hommages collectifs,
un laboratoire technique optimisé pour les professionnels,
un magasin d’exposition spacieux,
un vestiaire, une cuisine, et plusieurs sanitaires,
un local annexe de stockage
L’organisation intérieure permet de séparer les flux techniques et les flux publics, un point essentiel dans ce type d’établissement.
Un ensemble de locaux complémentaires pour une activité complète
Le projet intègre également un bâtiment attenant comprenant :
des espaces de stationnement pour véhicules professionnels,
des locaux fermés destinés au stockage,
des zones techniques répondant aux normes en vigueur.
Ces espaces supplémentaires assurent un fonctionnement professionnel optimal, sans perturber l’accueil du public.
Un aménagement extérieur cohérent avec les usages
Le plan de masse met en avant :
11 places de parking, dont plusieurs PMR,
une large zone de retournement pour les véhicules funéraires,
des espaces végétalisés intégrés au site,
un accès clair et sécurisé depuis la voirie.
Un projet emblématique du savoir-faire Interpro
Interpro se positionne comme constructeur de référence pour les locaux professionnels spécialisés : cabinets médicaux, maisons de santé, bureaux, ateliers, commerces et équipements funéraires. Ce funérarium démontre une nouvelle fois notre capacité à :
concevoir des espaces sensibles,
accompagner nos clients de l’esquisse au dépôt du permis,
gérer la construction avec rigueur,
livrer des bâtiments à la fois fonctionnels, élégants et parfaitement intégrés à leur environnement.
Envie de créer un funérarium, un local professionnel ?
Notre équipe accompagne les professionnels dans tout le Grand Ouest pour concevoir et réaliser des bâtiments adaptés à leurs usages : 👉 locaux médicaux 👉 commerces 👉 bureaux 👉 ateliers 👉 complexes funéraires 👉 bâtiments techniques
Vous souhaitez faire construire votre local professionnel et ne savez pas par où commencer ? InterPro est là pour vous aider et vous propose d'obtenir un devis gratuit en quelques clics !
Il vous suffit de remplir le formulaire ci-dessous. Promis, aucun spam !