Intervention d’InterPro pour la Construction d’un Centre de Contrôle Technique Automobile

InterPro a pris en charge la construction d’un centre de contrôle technique automobile destiné à un garagiste désireux de diversifier et développer son activité.

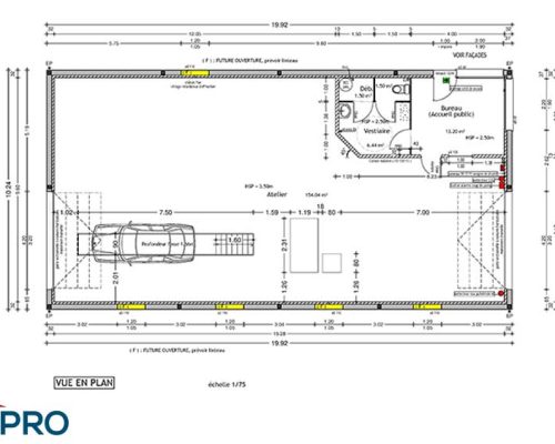
InterPro a élaboré un avant-projet détaillé pour définir les besoins spécifiques du client, en tenant compte des normes en vigueur pour les centres de contrôle technique. L’entreprise s’est ensuite occupée du dépôt du permis de construire, assurant que toutes les démarches administratives et réglementaires soient respectées, pour garantir une construction sans encombre.

Le bâtiment a été construit en parpaing, offrant une structure robuste et durable, avec l’avantage significatif de pouvoir être facilement reconvertie en un autre type d’établissement à l’avenir, si nécessaire. Cette flexibilité permet au propriétaire de s’adapter aux évolutions du marché ou aux besoins changeants de son entreprise. En plus de la construction, InterPro a assuré la mise en place d’une signalétique claire et professionnelle, facilitant l’identification et l’orientation des clients vers le centre. Grâce à cette réalisation, le garagiste bénéficie désormais d’un espace moderne et fonctionnel pour offrir des services de contrôle technique, tout en disposant d’une infrastructure polyvalente pour soutenir la croissance future de son activité.